6, Ardestie Street, Monifieth, Dundee

Sold Subject to Contract
Offers over £210,000 - Freehold

2 1 2

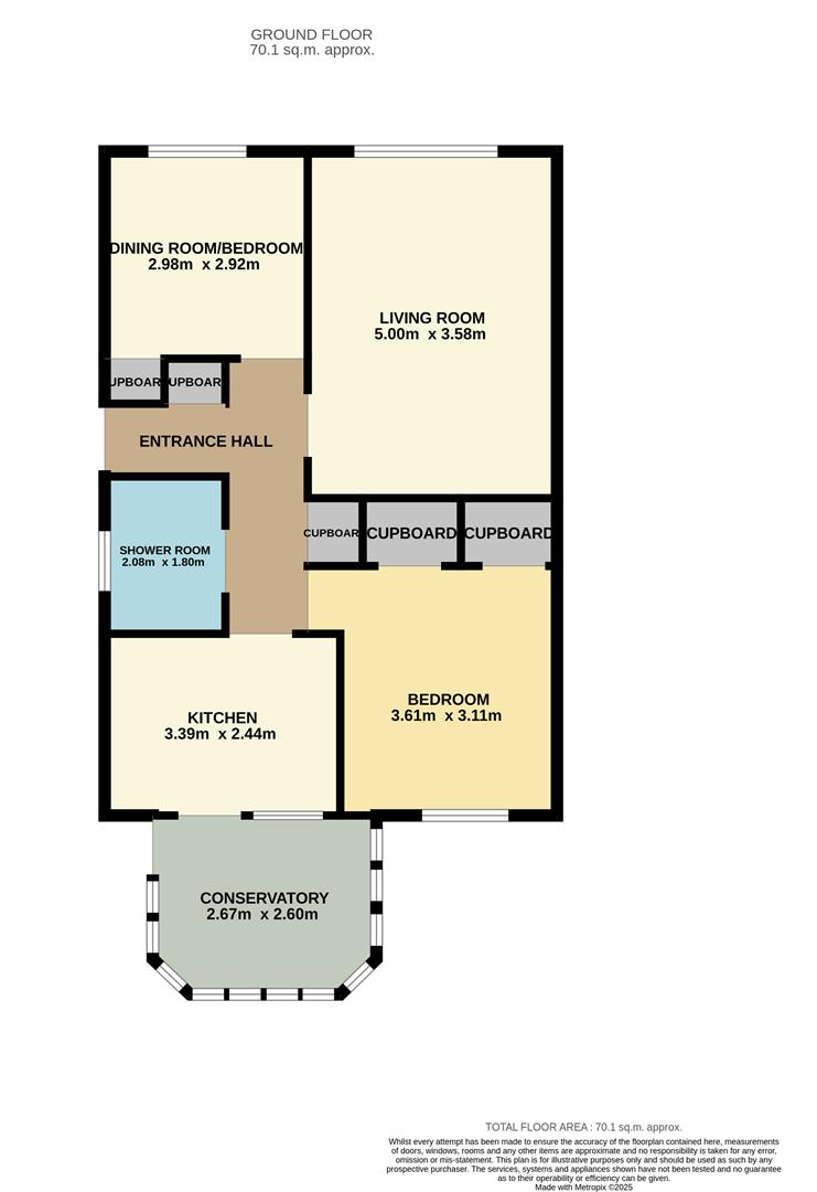
This well-presented home offers flexible accommodation perfectly suited for comfortable, single-level living.

Inside, the property comprises a welcoming living room with a large window ensuring the room is filled with light. There is a versatile dining room that could easily serve as a second bedroom.

The master bedroom has space for a king-size bed, along with built in storage and space for additional furnishings.

The bright shower room is home to a walk-in shower, vanity unit with storage, toilet and handwash basin.

There is a functional kitchen that has space for a dining table and chairs. It leads to a fabulous sunroom which offers the perfect space for entertaining or relaxing with views into the gardens.

Externally, the property benefits from wrap-around mature landscaped gardens, providing a private and tranquil outdoor space.

There is ample built-in storage throughout the home, as well as a single garage offering useful additional storage and parking.

Situated in the heart of Monifieth, one of the most desirable coastal towns in the region, residents of Ardestie Street enjoy the best of both worlds—peaceful living and easy access to a range of amenities. Monifieth boasts excellent local schools, shops, and cafés, plus easy access to the beach and scenic seafront walks, perfect for a relaxing day by the water.

Early viewing is highly recommended to fully appreciate this bungalow.

Floorplan for Ardestie Street, Monifieth, Dundee
Similar Properties