Flat c, 15, Panmure Street, Monifieth

For Sale
Fixed asking price £245,000 - Freehold

2 2 1

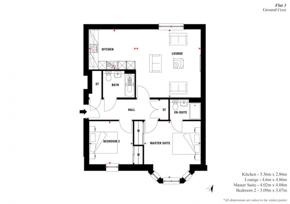
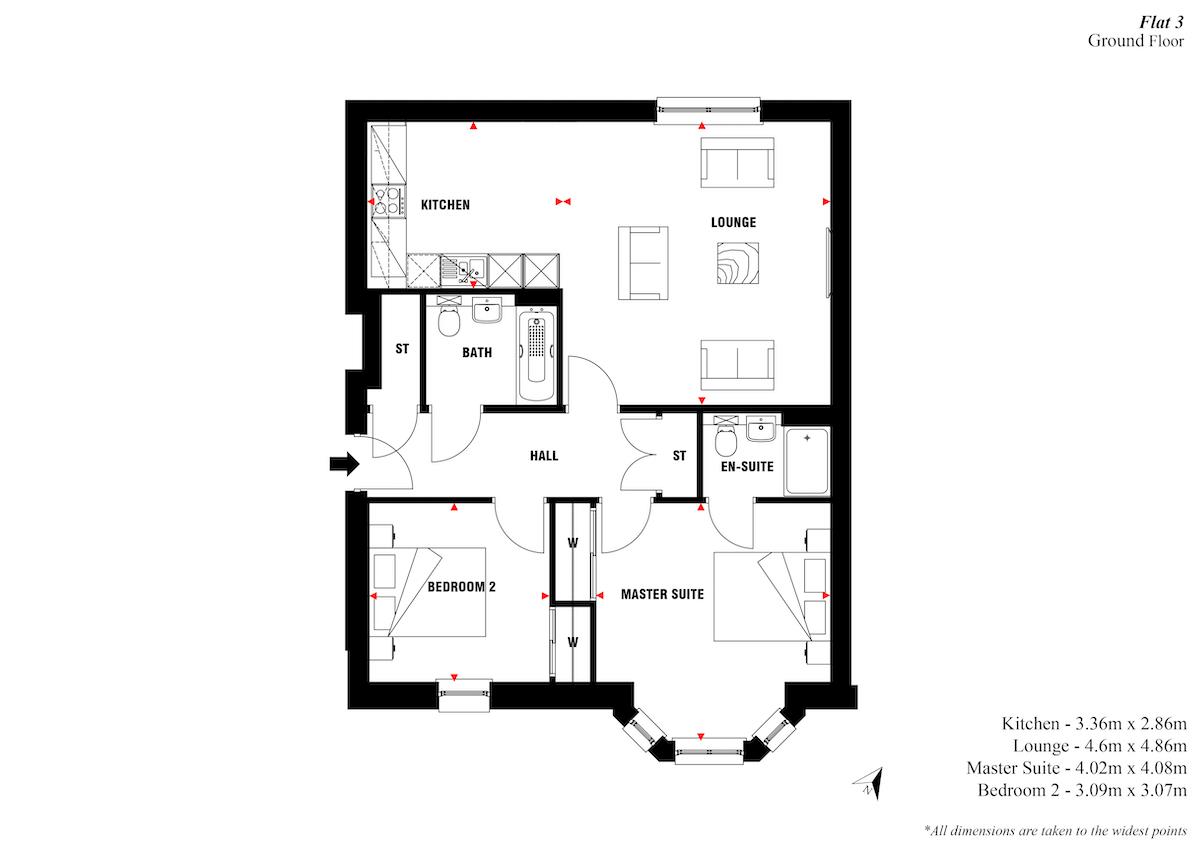
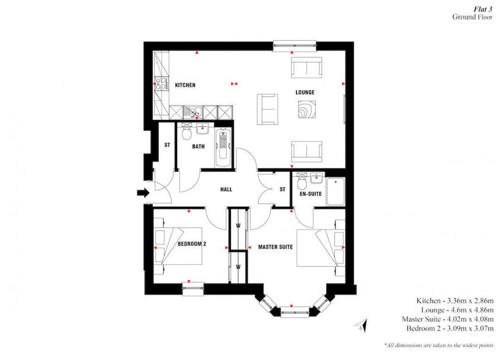
The apartment has a secure entry system. The property is spread over one level making it a great option for those with mobility issues.

The property comprises of spacious open plan living-kitchen space with floor to ceiling windows. There are three spacious double bedrooms, the master bedroom has an en-suite shower room in addition to the family bathroom.

The property has ample storage with hall cupboards and fitted wardrobes in each of the bedrooms.

Gas central heating and double glazing throughout.

Large communal garden to the rear of the property.

Within walking distance of Monifeith beach, Monifeith high street and Broughty Ferry. Ninewells hospital located 25 minutes drive from the property.

Floorplan for Panmure Street, Monifieth
Similar Properties